

特徴|Features
_______________
_______________
1デザイン
焼杉の重厚な外観と、グラフテクト・デュエの洗練されたキッチンが調和するデザインの家です。
焼杉の重厚な外観と、グラフテクト・デュエの洗練されたキッチンが調和するデザインの家です。
2性能
「W耐震」耐震等級3 + 制振装置
「W断熱」外張り断熱 + 充填断熱
「HEAT20 G2グレード」
「長期優良住宅」
「省令準耐火構造」
「W耐震」耐震等級3 + 制振装置
「W断熱」外張り断熱 + 充填断熱
「HEAT20 G2グレード」
「長期優良住宅」
「省令準耐火構造」
3保証
構造躯体「20年」、住宅設備「10年」を標準仕様とし、加度商が建てる全ての家に最高の品質をお届けします。
構造躯体「20年」、住宅設備「10年」を標準仕様とし、加度商が建てる全ての家に最高の品質をお届けします。
Gallery
_______________
_______________
伝統とモダンが交わる、設計手法
古くから日本の住まいに用いられてきた耐久性の高い「焼杉」の外壁と、尾道での日射を考慮し、あえて構造躯体を見せる工法で作られた「軒」を採用。現代的なシルエットと融合させた外観です。
古くから日本の住まいに用いられてきた耐久性の高い「焼杉」の外壁と、尾道での日射を考慮し、あえて構造躯体を見せる工法で作られた「軒」を採用。現代的なシルエットと融合させた外観です。

門壁を照らす、上質な灯り
門壁に灯る照明が、上質な雰囲気と安心感を演出。夜には住まいを美しく浮かび上がらせます。
門壁に灯る照明が、上質な雰囲気と安心感を演出。夜には住まいを美しく浮かび上がらせます。

2階建てに寄り添う、低層の玄関デザイン
メインは2階建てのボリュームながら、玄関だけを平屋とすることで外観に奥行きとリズムをプラス。
高さを抑えたエントランスが、訪れる人をやさしく迎え入れる落ち着いた佇まいを演出します。
メインは2階建てのボリュームながら、玄関だけを平屋とすることで外観に奥行きとリズムをプラス。
高さを抑えたエントランスが、訪れる人をやさしく迎え入れる落ち着いた佇まいを演出します。

日常を彩る、美しいキッチンデザイン
キッチンには大人気の「グラフテクト デュエ」を採用。
Ⅱ型のキッチンを採用する事で、より家事の効率が上がり、収納力も豊富なので機能性も十分です。
また壁面と同化するように造作家具とタイルで彩る事で、見た目と機能性を両立したキッチンを実現しました。
キッチンには大人気の「グラフテクト デュエ」を採用。
Ⅱ型のキッチンを採用する事で、より家事の効率が上がり、収納力も豊富なので機能性も十分です。
また壁面と同化するように造作家具とタイルで彩る事で、見た目と機能性を両立したキッチンを実現しました。

タイルが映える夜のキッチンダイニング
深みのあるタイルと、やわらかな照明が織りなす上質な雰囲気。
シンプルなデュエキッチンを背景に、ダイニングが心地よいくつろぎの場となります。
深みのあるタイルと、やわらかな照明が織りなす上質な雰囲気。
シンプルなデュエキッチンを背景に、ダイニングが心地よいくつろぎの場となります。

木とカラーが織りなすインテリア
無垢材の温もりにアクセントカラーを組み合わせた、洗練された室内空間。落ち着きと遊び心をあわせ持つ、上質な暮らしを叶えます。
無垢材の温もりにアクセントカラーを組み合わせた、洗練された室内空間。落ち着きと遊び心をあわせ持つ、上質な暮らしを叶えます。

鉄骨階段が生む開放感
軽やかなデザインの階段が、視線を遮らず奥行きを演出。
夜には足元の灯りと相まって、インテリアの一部として映えます。
軽やかなデザインの階段が、視線を遮らず奥行きを演出。
夜には足元の灯りと相まって、インテリアの一部として映えます。

窓辺に広がる明るく爽やかな暮らし
大きな窓から降り注ぐ光とテラスの緑が、室内を明るく心地よい雰囲気に。
料理や家族団らんのひとときが、自然と外の景色とつながっていきます。
大きな窓から降り注ぐ光とテラスの緑が、室内を明るく心地よい雰囲気に。
料理や家族団らんのひとときが、自然と外の景色とつながっていきます。

光と木がつくる寛ぎのリビング
無垢の床と木質家具に、間接照明のやわらかな光が重なり合う空間。ナイトシーンならではの落ち着きと温かさを感じられるリビングです。
無垢の床と木質家具に、間接照明のやわらかな光が重なり合う空間。ナイトシーンならではの落ち着きと温かさを感じられるリビングです。

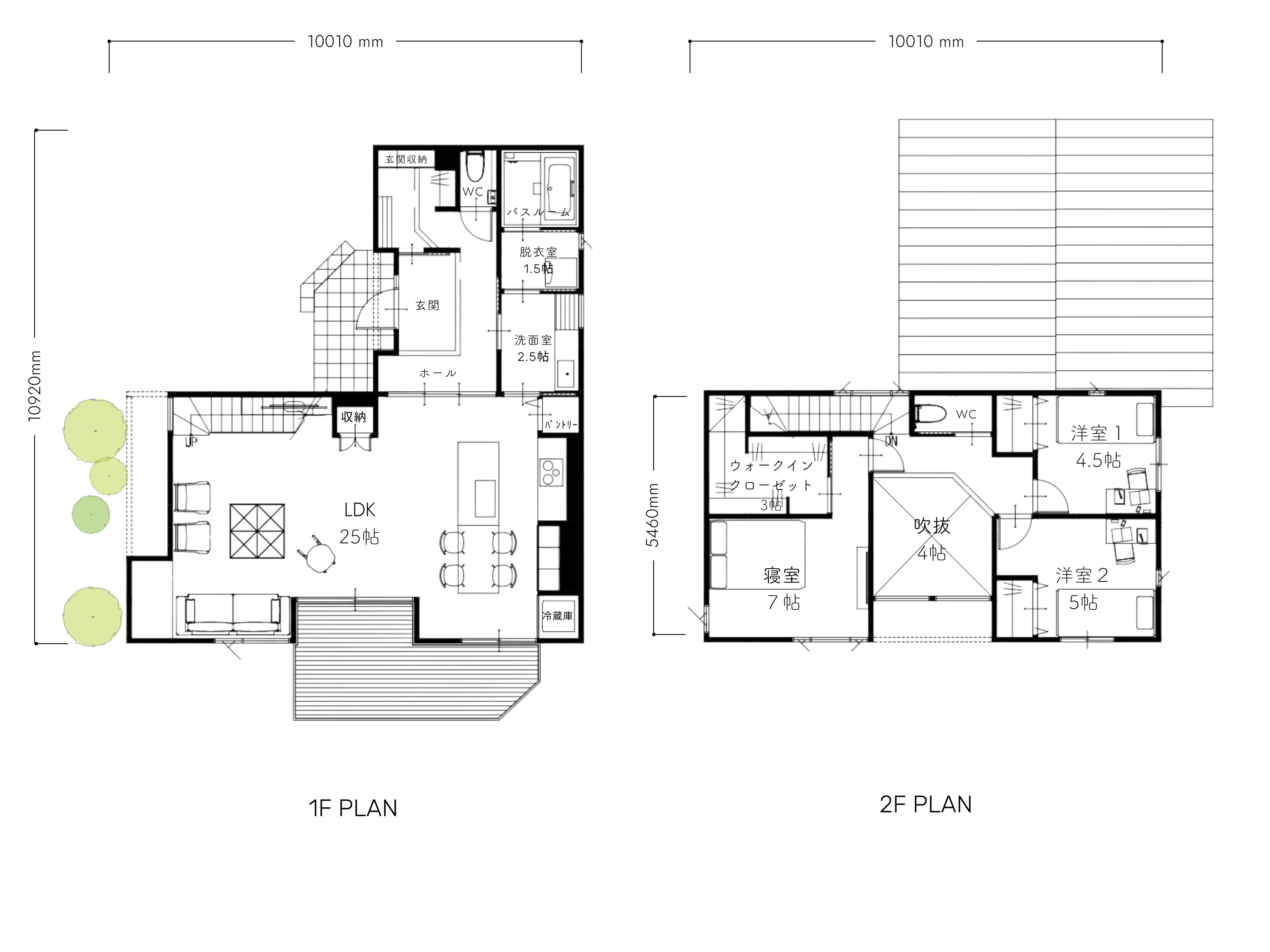
Floor Plan

延べ床面積:116.14㎡(35.2坪)
